Zestawienie pomieszczeń
Budynek "Feniks"
W formacie: kondygnacja . nr.pom. nazwa pomieszczenia /rodzaj posadzki /pow. (m2).
Piwnica
-1.1 KLATKA SCHODOWA gres 17,2
-1.2 PRZEDSIONEK pos. beton. 5,3
-1.3 POM. PORZĄDKOWE pos. beton. 4,4
-1.4 MASZYNOWNIA pos. beton. 5,0
-1.5 POMIESZCZENIE TECHNICZNE pos. beton. 2,6
-1.6 DŹWIG pos. beton. 2,9
-1.7 ROZDZIELNIA ELEKTRYCZNA pos. beton. 6,5
-1.8 PRZYŁĄCZE CIEPLNE pos. beton. 6,5
-1.9 PARKING 24 STANOWISKA pos. beton. 572,8
-1.10 POMIESZCZENIE NA ODPADKI terakota 5,4
-1.11 PRZEDSIONEK POM. NA ODPADKI terakota 2,4
-1.12.1 KORYTARZ pos. beton. 33,8
-1.12.2 ZAPLECZE GARAŻU 01 pos. beton. 3,1
-1.12.3 ZAPLECZE GARAŻU 02 pos. beton. 3,1
-1.12.4 ZAPLECZE GARAŻU 03 pos. beton. 3,1
-1.12.5 ZAPLECZE GARAŻU 04 pos. beton. 3,1
-1.12.6 ZAPLECZE GARAŻU 05 pos. beton. 3,1
-1.12.7 ZAPLECZE GARAŻU 06 pos. beton. 2,9
-1.12.8 ZAPLECZE GARAŻU 07 pos. beton. 2,9
-1.12.9 ZAPLECZE GARAŻU 08 pos. beton. 2,9
-1.12.10 ZAPLECZE GARAŻU 09 pos. beton. 2,9
-1.12.11 ZAPLECZE GARAŻU 10 pos. beton. 2,9
-1.12.12 ZAPLECZE GARAŻU 11 pos. beton. 2,9
-1.12.13 ZAPLECZE GARAŻU 12 pos. beton. 2,9
-1.12.14 ZAPLECZE GARAŻU 13 pos. beton. 2,9
-1.12.15 ZAPLECZE GARAŻU 14 pos. beton. 2,9
-1.12.16 ZAPLECZE GARAŻU 15 pos. beton. 2,8
-1.12.17 ZAPLECZE GARAŻU 16 pos. beton. 2,8
-1.12.18 ZAPLECZE GARAŻU 17 pos. beton. 2,9
-1.12.19 ZAPLECZE GARAŻU 18 pos. beton. 2,9
-1.12.20 ZAPLECZE GARAŻU 19 pos. beton. 2,9
-1.12.21 ZAPLECZE GARAŻU 20 pos. beton. 2,9
-1.12.22 ZAPLECZE GARAŻU 21 pos. beton. 2,7
-1.12.23 ZAPLECZE GARAŻU 22 pos. beton. 2,7
-1.12.24 ZAPLECZE GARAŻU 23 pos. beton. 2,7
-1.12.25 ZAPLECZE GARAŻU 24 pos. beton. 2,7
-1.13.1 KORYTARZ pos. beton. 15,6
-1.13.2 ZAPLECZE GARAŻU 25 pos. beton. 3,3
-1.13.3 ZAPLECZE GARAŻU 26 pos. beton. 3,3
-1.13.4 ZAPLECZE GARAŻU 27 pos. beton. 3,3
-1.13.5 ZAPLECZE GARAŻU 28 pos. beton. 3,3
-1.13.6 ZAPLECZE GARAŻU 29 pos. beton. 3,3
-1.13.7 ZAPLECZE GARAŻU 30 pos. beton. 3,3
-1.13.8 ZAPLECZE GARAŻU 31 pos. beton. 3,3
-1.13.9 ZAPLECZE GARAŻU 32 pos. beton. 3,3
-1.14.1 KORYTARZ pos. beton. 7,2
-1.14.2 ZAPLECZE GARAŻU 33 pos. beton. 2,9
-1.14.3 ZAPLECZE GARAŻU 34 pos. beton. 2,9
-1.14.4 ZAPLECZE GARAŻU 35 pos. beton. 2,9
-1.14.5 ZAPLECZE GARAŻU 36 pos. beton. 3,0
-1.14.6 ZAPLECZE GARAŻU 37 pos. beton. 3,1
-1.15.1 KORYTARZ pos. beton. 8,9
-1.15.2 ZAPLECZE GARAŻU 38 pos. beton. 2,6
-1.15.3 ZAPLECZE GARAŻU 39 pos. beton. 2,7
-1.15.4 ZAPLECZE GARAŻU 40 pos. beton. 3,3
-1.15.5 ZAPLECZE GARAŻU 41 pos. beton. 3,3
-1.15.6 ZAPLECZE GARAŻU 42 pos. beton. 3,3
-1.15.7 ZAPLECZE GARAŻU 43 pos. beton. 3,3
-1.15.8 ZAPLECZE GARAŻU 44 pos. beton. 3,2
-1.2 PRZEDSIONEK pos. beton. 5,3
-1.3 POM. PORZĄDKOWE pos. beton. 4,4
-1.4 MASZYNOWNIA pos. beton. 5,0
-1.5 POMIESZCZENIE TECHNICZNE pos. beton. 2,6
-1.6 DŹWIG pos. beton. 2,9
-1.7 ROZDZIELNIA ELEKTRYCZNA pos. beton. 6,5
-1.8 PRZYŁĄCZE CIEPLNE pos. beton. 6,5
-1.9 PARKING 24 STANOWISKA pos. beton. 572,8
-1.10 POMIESZCZENIE NA ODPADKI terakota 5,4
-1.11 PRZEDSIONEK POM. NA ODPADKI terakota 2,4
-1.12.1 KORYTARZ pos. beton. 33,8
-1.12.2 ZAPLECZE GARAŻU 01 pos. beton. 3,1
-1.12.3 ZAPLECZE GARAŻU 02 pos. beton. 3,1
-1.12.4 ZAPLECZE GARAŻU 03 pos. beton. 3,1
-1.12.5 ZAPLECZE GARAŻU 04 pos. beton. 3,1
-1.12.6 ZAPLECZE GARAŻU 05 pos. beton. 3,1
-1.12.7 ZAPLECZE GARAŻU 06 pos. beton. 2,9
-1.12.8 ZAPLECZE GARAŻU 07 pos. beton. 2,9
-1.12.9 ZAPLECZE GARAŻU 08 pos. beton. 2,9
-1.12.10 ZAPLECZE GARAŻU 09 pos. beton. 2,9
-1.12.11 ZAPLECZE GARAŻU 10 pos. beton. 2,9
-1.12.12 ZAPLECZE GARAŻU 11 pos. beton. 2,9
-1.12.13 ZAPLECZE GARAŻU 12 pos. beton. 2,9
-1.12.14 ZAPLECZE GARAŻU 13 pos. beton. 2,9
-1.12.15 ZAPLECZE GARAŻU 14 pos. beton. 2,9
-1.12.16 ZAPLECZE GARAŻU 15 pos. beton. 2,8
-1.12.17 ZAPLECZE GARAŻU 16 pos. beton. 2,8
-1.12.18 ZAPLECZE GARAŻU 17 pos. beton. 2,9
-1.12.19 ZAPLECZE GARAŻU 18 pos. beton. 2,9
-1.12.20 ZAPLECZE GARAŻU 19 pos. beton. 2,9
-1.12.21 ZAPLECZE GARAŻU 20 pos. beton. 2,9
-1.12.22 ZAPLECZE GARAŻU 21 pos. beton. 2,7
-1.12.23 ZAPLECZE GARAŻU 22 pos. beton. 2,7
-1.12.24 ZAPLECZE GARAŻU 23 pos. beton. 2,7
-1.12.25 ZAPLECZE GARAŻU 24 pos. beton. 2,7
-1.13.1 KORYTARZ pos. beton. 15,6
-1.13.2 ZAPLECZE GARAŻU 25 pos. beton. 3,3
-1.13.3 ZAPLECZE GARAŻU 26 pos. beton. 3,3
-1.13.4 ZAPLECZE GARAŻU 27 pos. beton. 3,3
-1.13.5 ZAPLECZE GARAŻU 28 pos. beton. 3,3
-1.13.6 ZAPLECZE GARAŻU 29 pos. beton. 3,3
-1.13.7 ZAPLECZE GARAŻU 30 pos. beton. 3,3
-1.13.8 ZAPLECZE GARAŻU 31 pos. beton. 3,3
-1.13.9 ZAPLECZE GARAŻU 32 pos. beton. 3,3
-1.14.1 KORYTARZ pos. beton. 7,2
-1.14.2 ZAPLECZE GARAŻU 33 pos. beton. 2,9
-1.14.3 ZAPLECZE GARAŻU 34 pos. beton. 2,9
-1.14.4 ZAPLECZE GARAŻU 35 pos. beton. 2,9
-1.14.5 ZAPLECZE GARAŻU 36 pos. beton. 3,0
-1.14.6 ZAPLECZE GARAŻU 37 pos. beton. 3,1
-1.15.1 KORYTARZ pos. beton. 8,9
-1.15.2 ZAPLECZE GARAŻU 38 pos. beton. 2,6
-1.15.3 ZAPLECZE GARAŻU 39 pos. beton. 2,7
-1.15.4 ZAPLECZE GARAŻU 40 pos. beton. 3,3
-1.15.5 ZAPLECZE GARAŻU 41 pos. beton. 3,3
-1.15.6 ZAPLECZE GARAŻU 42 pos. beton. 3,3
-1.15.7 ZAPLECZE GARAŻU 43 pos. beton. 3,3
-1.15.8 ZAPLECZE GARAŻU 44 pos. beton. 3,2
Razem: 829,0
Parter
0.1 KLATKA SCHODOWA gres 29,8
0.2 RECEPCJA gres 22,1
0.3 WC KLIENTÓW terakota 3,5
0.4 USŁUGA 01 (64,2 m2):
0.4.1 JADALNIA gres 36,4
0.4.2 KORYTARZ terakota 6,3
0.4.3 ROZDZIELNIA ŻYWNOŚCI terakota 12,0
0.4.4 MAGAZYN terakota 2,3
0.4.5 POMIESZCZENIE GOSPODARCZE terakota 2,3
0.4.6 SZATNIA PERSONELU terakota 2,3
0.4.7 WC PERSONELU terakota 2,6
0.5 KOMUNIKACJA gres 13,8
0.6 APARTAMENT 01 (50,4 m2):
0.6.1 PRZEDPOKÓJ panele 3,4
0.6.2 POKÓJ + ANEKS KUCHENNY panele 28,4
0.6.3 SYPIALNIA panele 11,3
0.6.4 GARDEROBA panele 2,3
0.6.5 ŁAZIENKA terakota 5,0
0.7 APARTAMENT 02 (50,4 m2):
0.7.1 PRZEDPOKÓJ panele 3,4
0.7.2 POKÓJ + ANEKS KUCHENNY panele 28,4
0.7.3 SYPIALNIA panele 11,3
0.7.4 GARDEROBA panele 2,3
0.7.5 ŁAZIENKA terakota 5,0
0.8 USŁUGA 02 (154,0 m2):
0.8.1 SALA SPRZEDAŻY gres 114,2
0.8.2 WC KLIENTÓW terakota 4,0
0.8.3 WC PERSONELU terakota 4,0
0.8.4 SZATNA PERSONELU terakota 4,3
0.8.5 KOMUNIKACJA gres 7,3
0.8.6 MAGAZYN gres 9,6
0.8.7 POMIESZCZENIE SOCJALNE gres 11,0
0.2 RECEPCJA gres 22,1
0.3 WC KLIENTÓW terakota 3,5
0.4 USŁUGA 01 (64,2 m2):
0.4.1 JADALNIA gres 36,4
0.4.2 KORYTARZ terakota 6,3
0.4.3 ROZDZIELNIA ŻYWNOŚCI terakota 12,0
0.4.4 MAGAZYN terakota 2,3
0.4.5 POMIESZCZENIE GOSPODARCZE terakota 2,3
0.4.6 SZATNIA PERSONELU terakota 2,3
0.4.7 WC PERSONELU terakota 2,6
0.5 KOMUNIKACJA gres 13,8
0.6 APARTAMENT 01 (50,4 m2):
0.6.1 PRZEDPOKÓJ panele 3,4
0.6.2 POKÓJ + ANEKS KUCHENNY panele 28,4
0.6.3 SYPIALNIA panele 11,3
0.6.4 GARDEROBA panele 2,3
0.6.5 ŁAZIENKA terakota 5,0
0.7 APARTAMENT 02 (50,4 m2):
0.7.1 PRZEDPOKÓJ panele 3,4
0.7.2 POKÓJ + ANEKS KUCHENNY panele 28,4
0.7.3 SYPIALNIA panele 11,3
0.7.4 GARDEROBA panele 2,3
0.7.5 ŁAZIENKA terakota 5,0
0.8 USŁUGA 02 (154,0 m2):
0.8.1 SALA SPRZEDAŻY gres 114,2
0.8.2 WC KLIENTÓW terakota 4,0
0.8.3 WC PERSONELU terakota 4,0
0.8.4 SZATNA PERSONELU terakota 4,3
0.8.5 KOMUNIKACJA gres 7,3
0.8.6 MAGAZYN gres 9,6
0.8.7 POMIESZCZENIE SOCJALNE gres 11,0
Razem: 388,2
I piętro
1.1 KLATKA SCHODOWA gres 32,9
1.2 KOMUNIKACJA gres 19,1
1.3 APARTAMENT 12 (62,0 m2):
1.3.1 PRZEDPOKÓJ panele 7,9
1.3.2 ŁAZIENKA terakota 4,8
1.3.3 SYPIALNIA panele 10,6
1.3.4 POKÓJ + ANEKS KUCHENNY panele 38,7
1.4 APARTAMENT 13 (47,4 m2):
1.4.1 ŁAZIENKA terakota 4,7
1.4.2 SYPIALNIA panele 11,2
1.4.3 POKÓJ + ANEKS KUCHENNY panele 31,5
1.5 APARTAMENT 03 (27,3 m2):
1.5.1 ŁAZIENKA terakota 4,7
1.5.2 POKÓJ + ANEKS KUCHENNY panele 22,6
1.6 APARTAMENT 04 (27,3 m2):
1.6.1 ŁAZIENKA terakota 4,7
1.6.2 POKÓJ + ANEKS KUCHENNY panele 22,6
1.7 APARTAMENT 05 (27,3 m2):
1.7.1 ŁAZIENKA terakota 4,7
1.7.2 POKÓJ + ANEKS KUCHENNY panele 22,6
1.8 APARTAMENT 06 (27,3 m2):
1.8.1 ŁAZIENKA terakota 4,7
1.8.2 POKÓJ + ANEKS KUCHENNY panele 22,6
1.9 KOMUNIKACJA gres 15,5
1.10 APARTAMENT 07 (27,0 m2):
1.10.1 ŁAZIENKA terakota 4,4
1.10.2 POKÓJ + ANEKS KUCHENNY panele 22,6
1.11 APARTAMENT 08 (27,1 m2):
1.11.1 ŁAZIENKA terakota 4,6
1.11.2 POKÓJ + ANEKS KUCHENNY panele 22,5
1.12 APARTAMENT 09 (27,1 m2):
1.12.1 ŁAZIENKA terakota 4,6
1.12.2 POKÓJ + ANEKS KUCHENNY panele 22,5
1.13 ZAPLECZE SOCJALNE 10 (27,0 m2):
1.13.1 ŁAZIENKA terakota 4,6
1.13.2 POMIESZCZENIE SOCJALNE panele 18,3
1.13.3 SZATNIA PERSONELU panele 4,1
1.14 APARTAMENT 11 (41,3 m2):
1.14.1 PRZEDPOKÓJ panele 6,0
1.14.2 ŁAZIENKA terakota 4,9
1.14.3 ANEKS KUCHENNY terakota 8,9
1.14.4 POKÓJ panele 20,7
1.2 KOMUNIKACJA gres 19,1
1.3 APARTAMENT 12 (62,0 m2):
1.3.1 PRZEDPOKÓJ panele 7,9
1.3.2 ŁAZIENKA terakota 4,8
1.3.3 SYPIALNIA panele 10,6
1.3.4 POKÓJ + ANEKS KUCHENNY panele 38,7
1.4 APARTAMENT 13 (47,4 m2):
1.4.1 ŁAZIENKA terakota 4,7
1.4.2 SYPIALNIA panele 11,2
1.4.3 POKÓJ + ANEKS KUCHENNY panele 31,5
1.5 APARTAMENT 03 (27,3 m2):
1.5.1 ŁAZIENKA terakota 4,7
1.5.2 POKÓJ + ANEKS KUCHENNY panele 22,6
1.6 APARTAMENT 04 (27,3 m2):
1.6.1 ŁAZIENKA terakota 4,7
1.6.2 POKÓJ + ANEKS KUCHENNY panele 22,6
1.7 APARTAMENT 05 (27,3 m2):
1.7.1 ŁAZIENKA terakota 4,7
1.7.2 POKÓJ + ANEKS KUCHENNY panele 22,6
1.8 APARTAMENT 06 (27,3 m2):
1.8.1 ŁAZIENKA terakota 4,7
1.8.2 POKÓJ + ANEKS KUCHENNY panele 22,6
1.9 KOMUNIKACJA gres 15,5
1.10 APARTAMENT 07 (27,0 m2):
1.10.1 ŁAZIENKA terakota 4,4
1.10.2 POKÓJ + ANEKS KUCHENNY panele 22,6
1.11 APARTAMENT 08 (27,1 m2):
1.11.1 ŁAZIENKA terakota 4,6
1.11.2 POKÓJ + ANEKS KUCHENNY panele 22,5
1.12 APARTAMENT 09 (27,1 m2):
1.12.1 ŁAZIENKA terakota 4,6
1.12.2 POKÓJ + ANEKS KUCHENNY panele 22,5
1.13 ZAPLECZE SOCJALNE 10 (27,0 m2):
1.13.1 ŁAZIENKA terakota 4,6
1.13.2 POMIESZCZENIE SOCJALNE panele 18,3
1.13.3 SZATNIA PERSONELU panele 4,1
1.14 APARTAMENT 11 (41,3 m2):
1.14.1 PRZEDPOKÓJ panele 6,0
1.14.2 ŁAZIENKA terakota 4,9
1.14.3 ANEKS KUCHENNY terakota 8,9
1.14.4 POKÓJ panele 20,7
Razem: 435,6
II piętro
2.1 KLATKA SCHODOWA gres 32,9
2.2 KOMUNIKACJA gres 19,1
2.3 APARTAMENT 23 (61,8 m2):
2.3.1 PRZEDPOKÓJ panele 7,9
2.3.2 ŁAZIENKA terakota 4,6
2.3.3 SYPIALNIA panele 10,6
2.3.4 POKÓJ + ANEKS KUCHENNY panele 38,7
2.4 APARTAMENT 24 (47,4 m2):
2.4.1 ŁAZIENKA terakota 4,7
2.4.2 SYPIALNIA panele 11,2
2.4.3 POKÓJ + ANEKS KUCHENNY panele 31,5
2.5 APARTAMENT 14 (27,0 m2):
2.5.1 ŁAZIENKA terakota 4,4
2.5.2 POKÓJ + ANEKS KUCHENNY panele 22,6
2.6 APARTAMENT 15 (27,0 m2):
2.6.1 ŁAZIENKA terakota 4,4
2.6.2 POKÓJ + ANEKS KUCHENNY panele 22,6
2.7 APARTAMENT 16 (27,0 m2):
2.7.1 ŁAZIENKA terakota 4,4
2.7.2 POKÓJ + ANEKS KUCHENNY panele 22,6
2.8 APARTAMENT 17 (27,0 m2):
2.8.1 ŁAZIENKA terakota 4,4
2.8.2 POKÓJ + ANEKS KUCHENNY panele 22,6
2.9 KOMUNIKACJA gres 15,5
2.10 APARTAMENT 18 (26,9 m2):
2.10.1 ŁAZIENKA terakota 4,4
2.10.2 POKÓJ + ANEKS KUCHENNY panele 22,5
2.11 APARTAMENT 19 (27,0 m2):
2.11.1 ŁAZIENKA terakota 4,5
2.11.2 POKÓJ + ANEKS KUCHENNY panele 22,5
2.12 APARTAMENT 20 (27,0 m2):
2.12.1 ŁAZIENKA terakota 4,5
2.12.2 POKÓJ + ANEKS KUCHENNY panele 22,5
2.13 APARTAMENT 21 (27,0 m2):
2.13.1 ŁAZIENKA terakota 4,5
2.13.2 POKÓJ + ANEKS KUCHENNY panele 22,5
2.14 APARTAMENT 22 (41,1 m2):
2.14.1 PRZEDPOKÓJ panele 6,8
2.14.2 ŁAZIENKA terakota 4,7
2.14.3 ANEKS KUCHENNY terakota 8,9
2.14.4 POKÓJ panele 20,7
2.2 KOMUNIKACJA gres 19,1
2.3 APARTAMENT 23 (61,8 m2):
2.3.1 PRZEDPOKÓJ panele 7,9
2.3.2 ŁAZIENKA terakota 4,6
2.3.3 SYPIALNIA panele 10,6
2.3.4 POKÓJ + ANEKS KUCHENNY panele 38,7
2.4 APARTAMENT 24 (47,4 m2):
2.4.1 ŁAZIENKA terakota 4,7
2.4.2 SYPIALNIA panele 11,2
2.4.3 POKÓJ + ANEKS KUCHENNY panele 31,5
2.5 APARTAMENT 14 (27,0 m2):
2.5.1 ŁAZIENKA terakota 4,4
2.5.2 POKÓJ + ANEKS KUCHENNY panele 22,6
2.6 APARTAMENT 15 (27,0 m2):
2.6.1 ŁAZIENKA terakota 4,4
2.6.2 POKÓJ + ANEKS KUCHENNY panele 22,6
2.7 APARTAMENT 16 (27,0 m2):
2.7.1 ŁAZIENKA terakota 4,4
2.7.2 POKÓJ + ANEKS KUCHENNY panele 22,6
2.8 APARTAMENT 17 (27,0 m2):
2.8.1 ŁAZIENKA terakota 4,4
2.8.2 POKÓJ + ANEKS KUCHENNY panele 22,6
2.9 KOMUNIKACJA gres 15,5
2.10 APARTAMENT 18 (26,9 m2):
2.10.1 ŁAZIENKA terakota 4,4
2.10.2 POKÓJ + ANEKS KUCHENNY panele 22,5
2.11 APARTAMENT 19 (27,0 m2):
2.11.1 ŁAZIENKA terakota 4,5
2.11.2 POKÓJ + ANEKS KUCHENNY panele 22,5
2.12 APARTAMENT 20 (27,0 m2):
2.12.1 ŁAZIENKA terakota 4,5
2.12.2 POKÓJ + ANEKS KUCHENNY panele 22,5
2.13 APARTAMENT 21 (27,0 m2):
2.13.1 ŁAZIENKA terakota 4,5
2.13.2 POKÓJ + ANEKS KUCHENNY panele 22,5
2.14 APARTAMENT 22 (41,1 m2):
2.14.1 PRZEDPOKÓJ panele 6,8
2.14.2 ŁAZIENKA terakota 4,7
2.14.3 ANEKS KUCHENNY terakota 8,9
2.14.4 POKÓJ panele 20,7
Razem: 433,7
Poddasze I
3.1 KLATKA SCHODOWA gres 32,9
3.2 KOMUNIKACJA gres 19,1
3.3 APARTAMENT 34 (60,0 m2):
3.3.1 PRZEDPOKÓJ panele 7,9
3.3.2 ŁAZIENKA terakota 4,5
3.3.3 SYPIALNIA panele 10,1
3.3.4 POKÓJ + ANEKS KUCHENNY panele 37,5
3.4 APARTAMENT 35 (47,4 m2):
3.4.1 ŁAZIENKA terakota 4,7
3.4.2 SYPIALNIA panele 11,2
3.4.3 POKÓJ + ANEKS KUCHENNY panele 31,5
3.5 APARTAMENT 25 (26,5 m2):
3.5.1 ŁAZIENKA terakota 4,4
3.5.2 POKÓJ + ANEKS KUCHENNY panele 22,1
3.6 APARTAMENT 26 (26,5 m2):
3.6.1 ŁAZIENKA terakota 4,4
3.6.2 POKÓJ + ANEKS KUCHENNY panele 22,1
3.7 APARTAMENT 27 (26,5 m2):
3.7.1 ŁAZIENKA terakota 4,4
3.7.2 POKÓJ + ANEKS KUCHENNY panele 22,1
3.8 APARTAMENT 28 (26,5 m2):
3.8.1 ŁAZIENKA terakota 4,4
3.8.2 POKÓJ + ANEKS KUCHENNY panele 22,1
3.9 KOMUNIKACJA gres 15,5
3.10 APARTAMENT 29 (26,4 m2):
3.10.1 ŁAZIENKA terakota 4,4
3.10.2 POKÓJ + ANEKS KUCHENNY panele 22,0
3.11 APARTAMENT 30 (26,3 m2):
3.11.1 ŁAZIENKA terakota 4,3
3.11.2 POKÓJ + ANEKS KUCHENNY panele 22,0
3.12 APARTAMENT 31 (26,3 m2):
3.12.1 ŁAZIENKA terakota 4,3
3.12.2 POKÓJ + ANEKS KUCHENNY panele 22,0
3.13 APARTAMENT 32 (26,3 m2):
3.13.1 ŁAZIENKA terakota 4,3
3.13.2 POKÓJ + ANEKS KUCHENNY panele 22,0
3.14 APARTAMENT 33 (40,3 m2):
3.14.1 PRZEDPOKÓJ panele 6,8
3.14.2 ŁAZIENKA terakota 4,6
3.14.3 ANEKS KUCHENNY terakota 8,9
3.14.4 POKÓJ panele 20,0
3.2 KOMUNIKACJA gres 19,1
3.3 APARTAMENT 34 (60,0 m2):
3.3.1 PRZEDPOKÓJ panele 7,9
3.3.2 ŁAZIENKA terakota 4,5
3.3.3 SYPIALNIA panele 10,1
3.3.4 POKÓJ + ANEKS KUCHENNY panele 37,5
3.4 APARTAMENT 35 (47,4 m2):
3.4.1 ŁAZIENKA terakota 4,7
3.4.2 SYPIALNIA panele 11,2
3.4.3 POKÓJ + ANEKS KUCHENNY panele 31,5
3.5 APARTAMENT 25 (26,5 m2):
3.5.1 ŁAZIENKA terakota 4,4
3.5.2 POKÓJ + ANEKS KUCHENNY panele 22,1
3.6 APARTAMENT 26 (26,5 m2):
3.6.1 ŁAZIENKA terakota 4,4
3.6.2 POKÓJ + ANEKS KUCHENNY panele 22,1
3.7 APARTAMENT 27 (26,5 m2):
3.7.1 ŁAZIENKA terakota 4,4
3.7.2 POKÓJ + ANEKS KUCHENNY panele 22,1
3.8 APARTAMENT 28 (26,5 m2):
3.8.1 ŁAZIENKA terakota 4,4
3.8.2 POKÓJ + ANEKS KUCHENNY panele 22,1
3.9 KOMUNIKACJA gres 15,5
3.10 APARTAMENT 29 (26,4 m2):
3.10.1 ŁAZIENKA terakota 4,4
3.10.2 POKÓJ + ANEKS KUCHENNY panele 22,0
3.11 APARTAMENT 30 (26,3 m2):
3.11.1 ŁAZIENKA terakota 4,3
3.11.2 POKÓJ + ANEKS KUCHENNY panele 22,0
3.12 APARTAMENT 31 (26,3 m2):
3.12.1 ŁAZIENKA terakota 4,3
3.12.2 POKÓJ + ANEKS KUCHENNY panele 22,0
3.13 APARTAMENT 32 (26,3 m2):
3.13.1 ŁAZIENKA terakota 4,3
3.13.2 POKÓJ + ANEKS KUCHENNY panele 22,0
3.14 APARTAMENT 33 (40,3 m2):
3.14.1 PRZEDPOKÓJ panele 6,8
3.14.2 ŁAZIENKA terakota 4,6
3.14.3 ANEKS KUCHENNY terakota 8,9
3.14.4 POKÓJ panele 20,0
Razem: 426,5
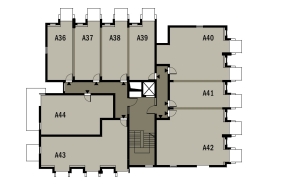
Poddasze II
4.1 KLATKA SCHODOWA gres 32,9
4.2 KOMUNIKACJA gres 19,1
4.3 APARTAMENT 43 (57,0 m2):
4.3.1 PRZEDPOKÓJ panele 7,9
4.3.2 ŁAZIENKA terakota 4,5
4.3.3 SYPIALNIA panele 9,2
4.3.4 POKÓJ + ANEKS KUCHENNY panele 35,4
4.4 APARTAMENT 44 (47,4 m2):
4.4.1 ŁAZIENKA terakota 4,7
4.4.2 SYPIALNIA panele 11,2
4.4.3 POKÓJ + ANEKS KUCHENNY panele 31,5
4.5 APARTAMENT 36 (25,6 m2):
4.5.1 ŁAZIENKA terakota 4,4
4.5.2 POKÓJ + ANEKS KUCHENNY panele 21,2
4.6 APARTAMENT 37 (25,6 m2):
4.6.1 ŁAZIENKA terakota 4,4
4.6.2 POKÓJ + ANEKS KUCHENNY panele 21,2
4.7 APARTAMENT 38 (25,6 m2):
4.7.1 ŁAZIENKA terakota 4,4
4.7.2 POKÓJ + ANEKS KUCHENNY panele 21,2
4.8 APARTAMENT 39 (25,6 m2):
4.8.1 ŁAZIENKA terakota 4,4
4.8.2 POKÓJ + ANEKS KUCHENNY panele 21,2
4.9 KOMUNIKACJA gres 11,1
4.10 APARTAMENT 40 (66,2 m2):
4.10.1 SCHODY NA TARAS panele 12,6
4.10.2 ŁAZIENKA terakota 5,5
4.10.3 SYPIALNIA panele 16,4
4.10.4 POKÓJ + ANEKS KUCHENNY panele 31,7
4.11 APARTAMENT 41 (25,4 m2):
4.11.1 ŁAZIENKA terakota 4,3
4.11.2 POKÓJ + ANEKS KUCHENNY panele 21,1
4.12 APARTAMENT 42 (73,9 m2):
4.12.1 ŁAZIENKA terakota 5,9
4.12.2 SYPIALNIA panele 11,5
4.12.3 POKÓJ Z ANEKSEM KUCHENNYM panele 39,6
4.12.4 POMIESZCZENIE GOSPODARCZE terakota 2,6
4.12.5 SCHODY NA TARAS panele 14,3
4.2 KOMUNIKACJA gres 19,1
4.3 APARTAMENT 43 (57,0 m2):
4.3.1 PRZEDPOKÓJ panele 7,9
4.3.2 ŁAZIENKA terakota 4,5
4.3.3 SYPIALNIA panele 9,2
4.3.4 POKÓJ + ANEKS KUCHENNY panele 35,4
4.4 APARTAMENT 44 (47,4 m2):
4.4.1 ŁAZIENKA terakota 4,7
4.4.2 SYPIALNIA panele 11,2
4.4.3 POKÓJ + ANEKS KUCHENNY panele 31,5
4.5 APARTAMENT 36 (25,6 m2):
4.5.1 ŁAZIENKA terakota 4,4
4.5.2 POKÓJ + ANEKS KUCHENNY panele 21,2
4.6 APARTAMENT 37 (25,6 m2):
4.6.1 ŁAZIENKA terakota 4,4
4.6.2 POKÓJ + ANEKS KUCHENNY panele 21,2
4.7 APARTAMENT 38 (25,6 m2):
4.7.1 ŁAZIENKA terakota 4,4
4.7.2 POKÓJ + ANEKS KUCHENNY panele 21,2
4.8 APARTAMENT 39 (25,6 m2):
4.8.1 ŁAZIENKA terakota 4,4
4.8.2 POKÓJ + ANEKS KUCHENNY panele 21,2
4.9 KOMUNIKACJA gres 11,1
4.10 APARTAMENT 40 (66,2 m2):
4.10.1 SCHODY NA TARAS panele 12,6
4.10.2 ŁAZIENKA terakota 5,5
4.10.3 SYPIALNIA panele 16,4
4.10.4 POKÓJ + ANEKS KUCHENNY panele 31,7
4.11 APARTAMENT 41 (25,4 m2):
4.11.1 ŁAZIENKA terakota 4,3
4.11.2 POKÓJ + ANEKS KUCHENNY panele 21,1
4.12 APARTAMENT 42 (73,9 m2):
4.12.1 ŁAZIENKA terakota 5,9
4.12.2 SYPIALNIA panele 11,5
4.12.3 POKÓJ Z ANEKSEM KUCHENNYM panele 39,6
4.12.4 POMIESZCZENIE GOSPODARCZE terakota 2,6
4.12.5 SCHODY NA TARAS panele 14,3
Razem: 435,4







